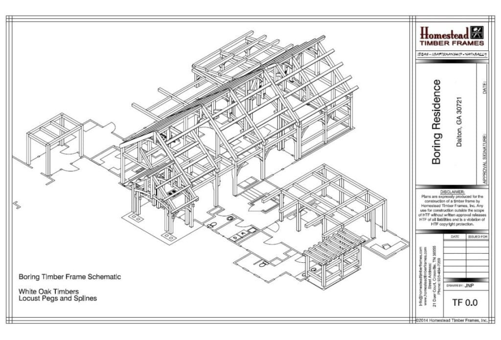
Homestead Timber Frames was contacted in the Summer of 2015 to build this custom heavy timber frame home. This beautiful Dalton, Georgia, home sits at just under 3500 square feet with personal touches all throughout the interior and exterior. Whatever your dreams are for a custom timber frame home are, we can provide a lifetime solution for you.
Homestead Timber Frames was contacted in the Summer of 2015 to build this custom heavy timber frame home. This beautiful Dalton, Georgia, home sits at just under 3500 square feet with personal touches all throughout the interior and exterior. Whatever your dreams are for a custom timber frame home are, we can provide a lifetime solution for you.

We offer free delivery to anywhere within a 120-mile radius (2 hours out, 2 hours back) of our shop in Cookeville, TN and around Garden Valley, ID, as well.
Our homes, like all of our timber frames, are delivered on a flatbed truck since they are too big to come in boxes.
We stand behind the craftsmanship and quality of each of our timber frames. So, if something is wrong, we make it right.
Get Your Timber Frame Building Guide to Avoid Costly Mistakes
